Menu Principale

Sezione Progetti

Area Download

     

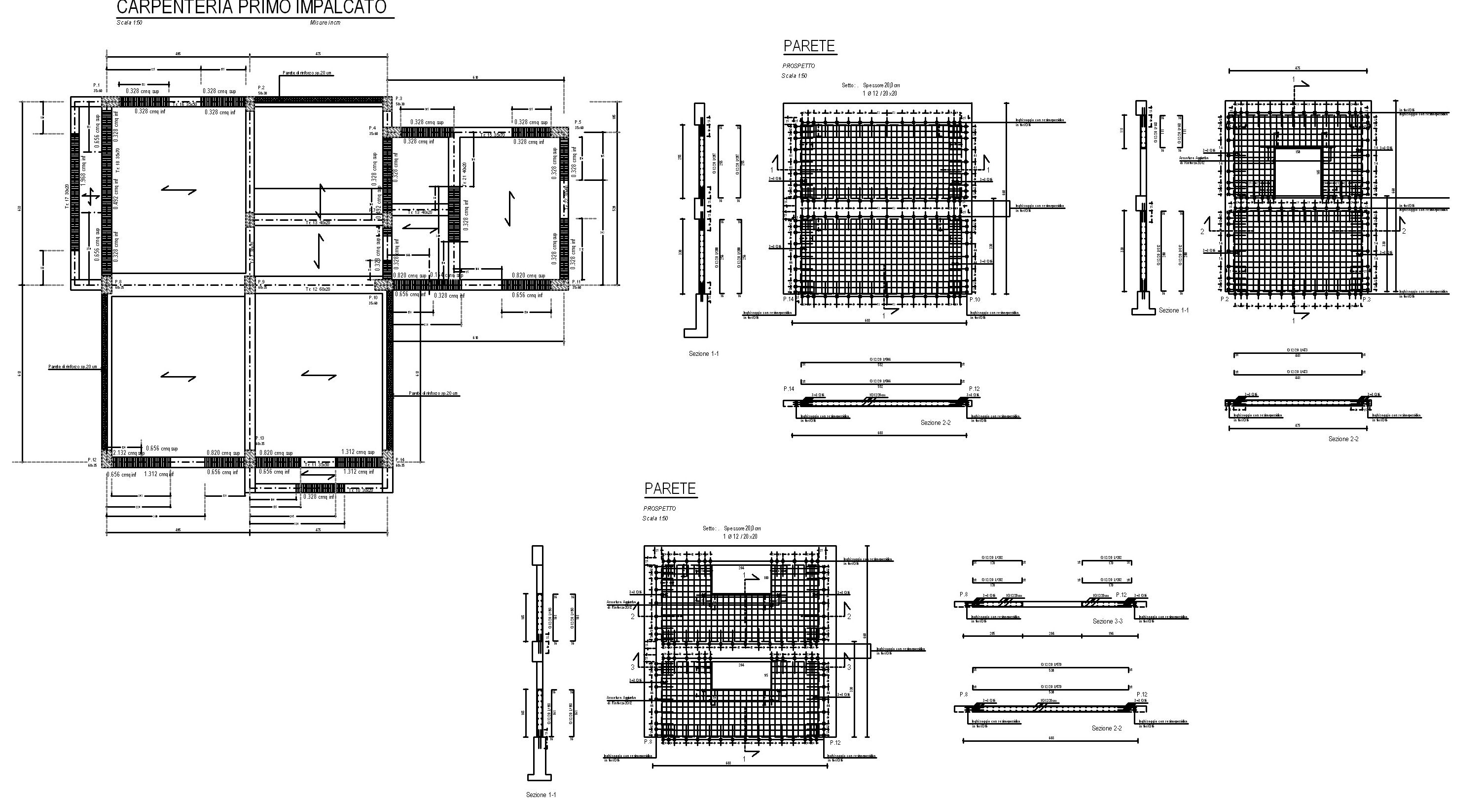
Adeguamento sismico di una scuola

Rinforzo con Pareti in c.a.
Val di Comino, 2007
Anno realizzazione: 2007|2010
Adeguamento sismico di un edificio scolastico in cemento armato. Le azioni taglianti nei pilastri sono state mitigate mediante l'inserimento di setti in c.a. in alcuni campi dei telai. Le travi sono state rinforzate con l'applicazione di fibre di carbonio (FRP). Modellazione in ambiente PRO_SAP (2SI Ferrara)